Häuser auf schmalen Grundstücken
Hausbau auf schmalen oder schwierigen Grundstücken
Schmale oder direkt an die Bausituation angepasste Hausbaukörper bieten interessante architektonische Möglichkeiten.
So kann ein gut überlegtes Bebauungskonzept für attraktiven und hochwertigen Wohnraum sorgen.
Ein Hausentwurf hat sich hier an den örtlichen Rahmenbedingungen zu orientieren und das stärker als bei einem normalen Baugrundstück.
Folgende grundsätzliche Fragestellungen bedürfen dazu unter anderem der Klärung:
- verbleibende Hausbreite nach Abzug der notwendigen Abstandflächen
- wo können die erforderlichen Stellplätze in einer Garage oder einem Carport platziert werden
- wie und von wo aus erschließe ich mein Grundstück
- wohin kann oder muß sich mein Wohnbereich hin orientieren
Exemplarisch zeigen wir Ihnen hier planerische Lösungen, die sich natürlich nur sehr begrenzt auf andere Grundstücke übertragen lassen.
Planungsbeispiel 1:
Die bauliche Situation ist definiert durch ein sehr schmales dazu langgezogenes Grundstück. Hausbreite knapp 5m plus optional 1,35m als Anbau.
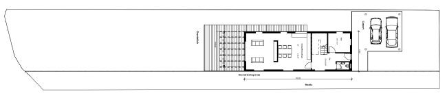
Planungsbeispiel 2:
Die bauliche Situation war definiert durch ein sehr schmales Grundstück, innerstädtisch gelegen. Die Breite des Grundstückes betrug nur ca. 6,5m. Um hier überhaupt eine Bebauung vorsehen zu können war es erforderlich daß eine Bebauung bis an die Grenze zum Straßenraum zulässig war.
Die Abmessungen des Hauses betragen 6,0x16,0m. Damit können an 2 Seiten des Hauses gem. dem Bayerischen Baurecht die Abstandsflächen halbiert werden. Die Erschließung des Hauses erfolgt von einer Schmalseite. Hier ist direkt neben dem Carport der Eingang platziert.
Der Wohnbereich orientiert sich zu anderen Schmalseite des Hauses sowie untergeordnet zur schmalen Gartenseite.
Holzverbundhaus Grosch + Hobmeier GmbH ...... Prinz-Ludwig-Str. 53 ...... 85354 Freising ...... Fon 08161-148744 ....... Mail: info@holzverbundhaus.de









